Grigoryan Residence
Custom Home and Estates Project of Hamlet Zohrabians Architect Inc.
About this project.
These drawings and specifications are the property and copyright of HAMLET ZOHRABIANS ARCHITECT INC., and shall not be used on any other work except by agreement with HAMLET ZOHRABIANS ARCHITECT INC. Written dimensions take precedence over scaled dimensions and shall be verified by the contractor on the job site. Any discrepancy shall be brought to the attention of HAMLET ZOHRABIANS ARCHITECT INC. prior to the commencement of any work.
The preliminary drawing indicates the general scope of the project in terms of the architectural design concept, the dimensions of the building, the major architectural elements, and the type of structural, mechanical, and electrical systems. As scope documents, the drawings do not necessarily indicate or describe all work required for full performance and completion of the requirements of the contract documents. On the basis of the general scope indicated or described, the contractor shall furnish all items required for proper execution and completion of the work.
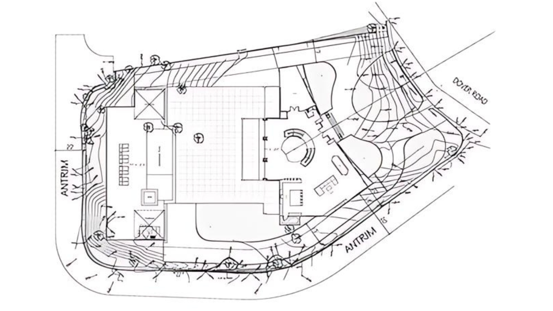
LOCATION:
- Dover Road, La Canada Flintridge, CA.
SHEET:
- 1.0
- 2.0 (Poolside rendering)
- Poolside views
PERSPECTIVE RENDERING:
- DATE: 04.11.24
- DRAWN BY: HZ
- JOB NUMBER: 020822
KEY NOTES:
- 1" SMOOTH TROWLED FINISH CEMENT PLASTER OVER PAPER BACKED METAL LATH OVER PLYWOOD SHEATHING ON EXTERIOR SIDE OF 2 x 6 AT 16" O.C. AND A LAYER OF 5/8" GYPSUM BOARD ON THE INTERIOR SIDE. PROVIDE R-15 INSULATION IN STUD SPACE
COLOR: Kelly-Moore "Ivory Mist" - 12" x 24" HONED STONE TILES OVER CONCRETE WALL
COLOR: Basalt Black Honed - 12" x 24" SMOOTH STONE TILES OVER BROWN COAT
COLOR: Basalt Black Honed - COMPOSITE WOOD SIDING
COLOR: TRESPA "Aged Ash" - PLASTERED RECTANGULAR COLUMN
COLOR: Kelly-Moore "Ivory Mist" - PRE-PAINTED METAL CLAD CANOPY
COLOR: Dunn Edwards "Black" - PRE-PAINTED METAL COPING (INVISIBLE)
COLOR: Black - PRE-PAINTED METAL GUTTER AND DOWN SPOUT
COLOR: Black
- FIBER GLASS FRAMED DUAL GLAZED WINDOW
COLOR: MARVIN ULTREX "Ebony" - FIBER GLASS FRAMED DUAL GLAZED PATIO DOORS
COLOR: MARVIN ULTREX "Ebony" - PAINTED WOOD DOOR
COLOR: HOLLOW METAL "Black" - PAINTED METAL GATE
COLOR: Black - PAINTED METAL RAILING WITH STAINLESS STEEL CABLE INSERTS
COLOR: Black - FORMED CONCRETE SLAB/WALL
COLOR: Natural Gray - PAINTED METAL CHIMNEY CAP
COLOR: Black - PRE-PAINTED METAL SECTIONAL GARAGE DOOR
COLOR: Black - METAL ADDRESS NUMBERS (illuminated)
COLOR: Black










